La Boulangerie L’Or Blanc à Pélussin
3355
wp-singular,portfolio_page-template-default,single,single-portfolio_page,postid-3355,wp-theme-bridge,wp-child-theme-bridge-child,bridge-core-3.3.4.6,cookies-not-set,qodef-qi--no-touch,qi-addons-for-elementor-1.9.5,qode-optimizer-1.0.4,,vertical_menu_enabled, vertical_menu_hidden,vertical_menu_hidden_with_logo, vertical_menu_width_400,qode_grid_1400,side_area_uncovered_from_content,footer_responsive_adv,qode-content-sidebar-responsive,qode-overridden-elementors-fonts,qode_disabled_responsive_button_padding_change,qode-smooth-scroll-enabled,qode-child-theme-ver-1.0.0,qode-theme-ver-30.8.8.6,qode-theme-bridge,qode_header_in_grid,qode-portfolio-single-template-2,elementor-default,elementor-kit-7,elementor-page elementor-page-3355

La Boulangerie L’Or Blanc à Pélussin

Date
Tags
aménagement d'un commerce, boulangerie, liste shopping, plans d'agencement, visuels 3D
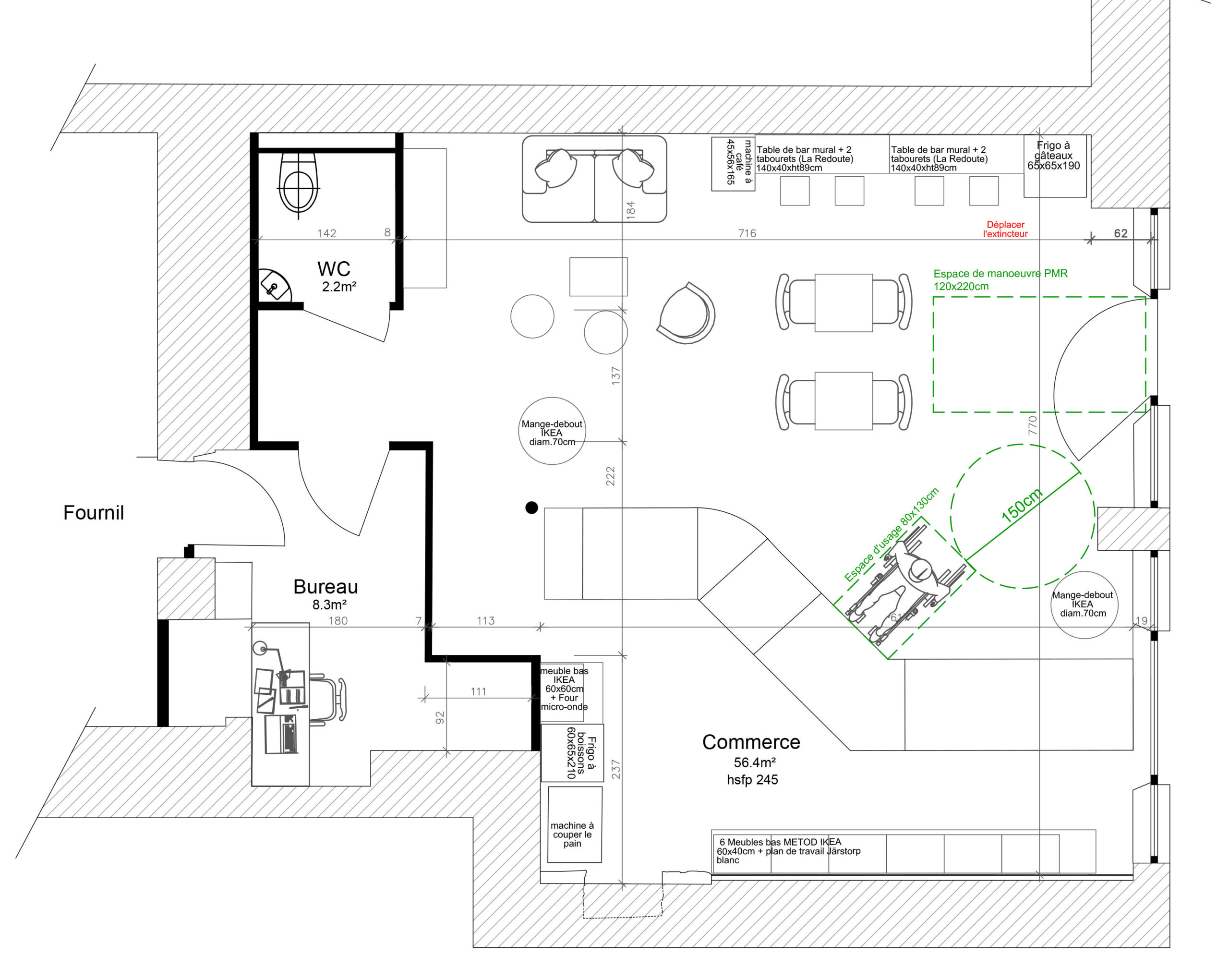
About This Project

Localisation: Pelussin (42)

Pour leur boulangerie, Célia et Rémi voulaient un esprit convivial, chaleureux et authentique  :

-Relevé de l’état des lieux pour l’établissement des plans

– réalisation de 3 propositions d’aménagement du commerce 

– visuels 3D

– liste shopping

Projet avant/après

Glisser
Glisser