Transformation d’un garage en suite parentale
3399
wp-singular,portfolio_page-template-default,single,single-portfolio_page,postid-3399,wp-theme-bridge,wp-child-theme-bridge-child,bridge-core-3.3.4.7,cookies-not-set,qodef-qi--no-touch,qi-addons-for-elementor-1.9.6,qode-optimizer-1.2.2,,vertical_menu_enabled, vertical_menu_hidden,vertical_menu_hidden_with_logo, vertical_menu_width_400,qode_grid_1400,side_area_uncovered_from_content,footer_responsive_adv,qode-content-sidebar-responsive,qode-overridden-elementors-fonts,qode_disabled_responsive_button_padding_change,qode-smooth-scroll-enabled,qode-child-theme-ver-1.0.0,qode-theme-ver-30.8.8.7,qode-theme-bridge,qode_header_in_grid,qode-portfolio-single-template-2,elementor-default,elementor-kit-7,elementor-page elementor-page-3399

Transformation d’un garage en suite parentale

Date
Tags
création d'une chambre, création d'une suite parentale, Plan 2D, Salle de bain, transformation d'un garage, visuels 3D
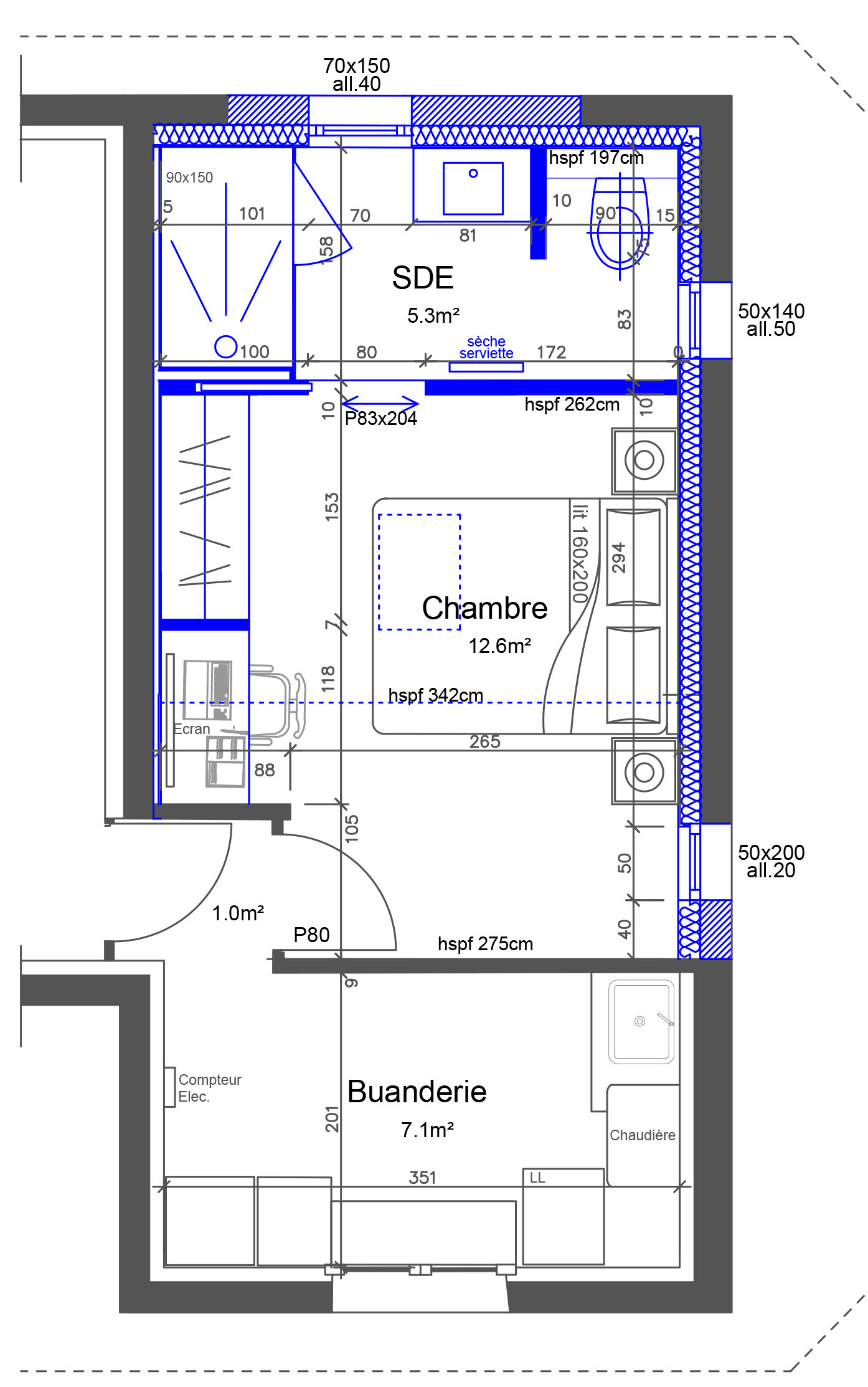
About This Project

Localisation: Vienne (38)

La famille s’agrandit, de nouvelles priorités apparaissent. Ici, c’est le besoin d’une chambre supplémentaire :

-Relevé de l’état des lieux pour l’établissement des plans

– réalisation de 3 propositions d’aménagement et plans 2D et visuels 3D

Projet avant/après

Glisser